
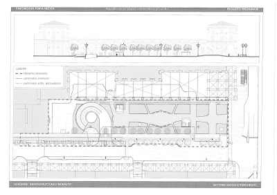
Il 2 aprile alle ore 16 in II commissione (presso la Sala Consiglio – via Campana 32) verrà presentato il progetto preliminare del parcheggio pubblico a tre piani interrato posto al di sotto dell’attuale parcheggio a raso lato via Nizza fronte porta Nuova.
L’ingresso e l’uscita veicolare avvengono su via Nizza attraverso una rampa elicoidale a doppio senso di marcia.
Sono previsti due blocchi scale per gli accessi pedonali collocati in posizione contrapposta, entrambi a servizio delle persone disabili e dotati quindi di ascensore con sbarco sul piano della piazza.
All’interno dell’autorimessa sono previsti inoltre servizi igienici per il pubblico e locali tecnici.
Il parcheggio è in grado si ospitare 204 posti auto. marco addonsio.
